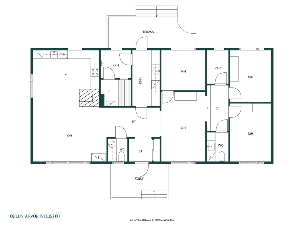
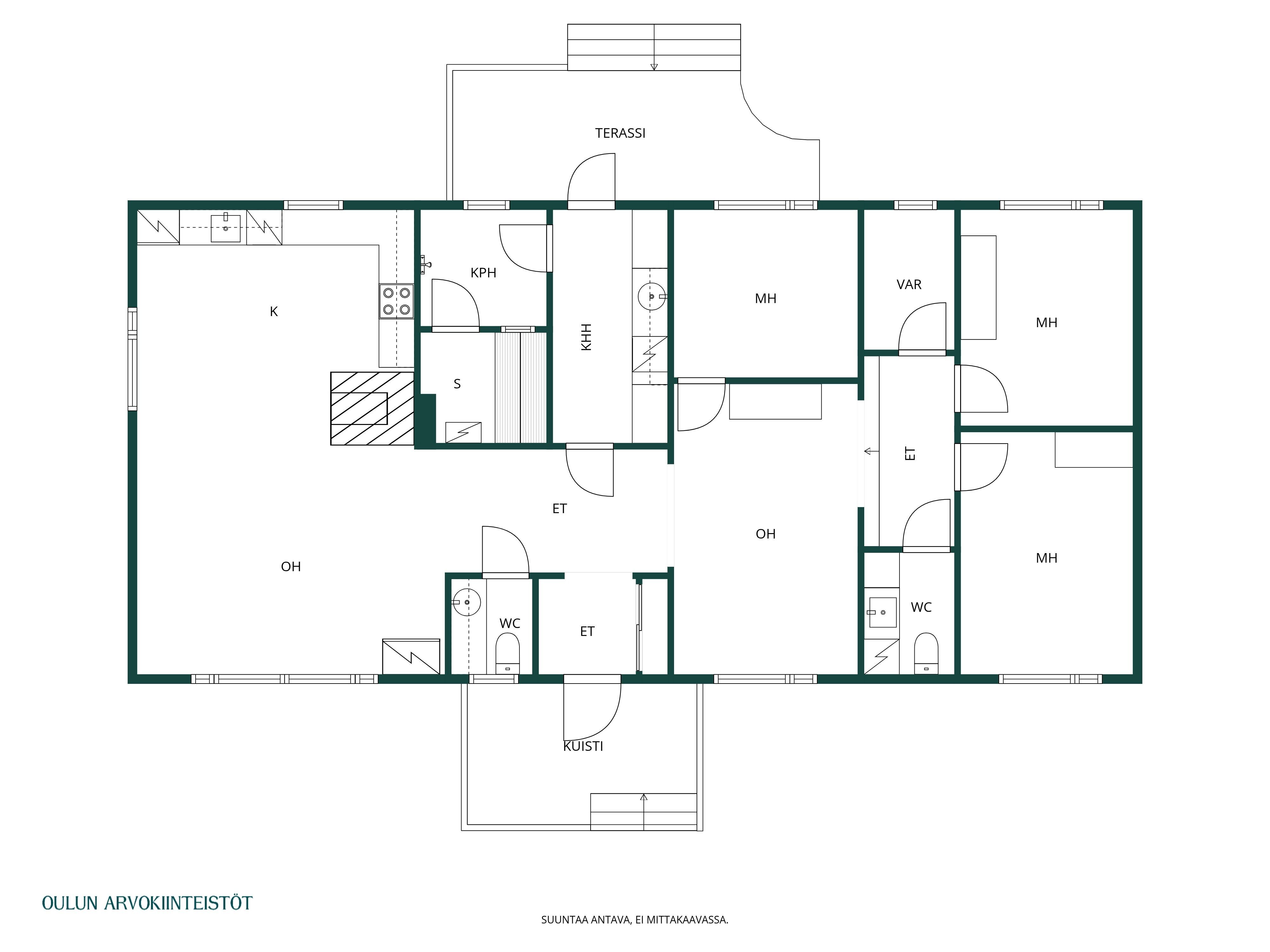
Iin Tikkasenharjun rauhallisella ja suojaisalla alueella, kahteen suuntaan puistoon rajoittuvalla tontilla, on nyt myynnissä viihtyisä omakotitalo. Tässä kodissa neliöt on käytetty fiksusti ja toimivasti, tarjoten arkeen sujuvat puitteet. Asunnosta löytyy kolme makuuhuonetta, vasta remontoitu keittiö sekä laajennus, joka tuo kotiin lisää tilaa ja mahdollisuuksia. Koti on lisäksi huoltomaalattu, joten kokonaisuus on hyvässä kunnossa.
Pihapiiri tarjoaa monipuoliset lisärakennukset ja vapaa-ajan mahdollisuudet. 56 m² autotallirakennuksen päädyssä sijaitsee yksiö, joka soveltuu erinomaisesti etätyötilaksi, pieneksi asunnoksi tai vaihtoehtoisesti varastokäyttöön. Takapihalta löytyvät tunnelmallinen grillikota, palju sekä puuliiteri, jotka viimeistelevät viihtyisän kokonaisuuden.
Tikkasenharjun monipuoliset ulkoilumaastot ovat aivan kivenheiton päässä, ja Iin kunnan kattavat palvelut löytyvät kätevästi läheltä. Tämä koti tarjoaa rauhallista asumista luonnon äärellä kuitenkaan palveluista tinkimättä.
Eetu Mertala | Myyntipäällikkö | Oulun Arvokiinteistöt Oy
p. 045 206 5777
eetu.mertala@oulunarvokiinteistot.fi 
Kohdetta myy

90120 Oulutoimisto@oulunarvokiinteistot.fi08 311 2270
Esittely
Perustiedot
Katajakuja 6
91100 Ii
Hinta ja kustannukset
Laskettu velattomasta myyntihinnasta.
Lisätiedot
Saunan lauteet
Varusteet: puukiuas
Seinien pintamateriaali: paneeli
Lattian pintamateriaali: laatta
Lämmönjakotapa: sähköinen lattialämmitys, muu
Asunnon tilat ja materiaalit
Seinien pintamateriaali: maalattu
Lattian pintamateriaali: laminaatti
Lattian pintamateriaali: laminaatti
Lattian pintamateriaali: laminaatti
Makuuhuoneiden määrä: 3
Seinien pintamateriaali: kaakeli
Lattian pintamateriaali: laatta
Seinien pintamateriaali: maalattu
Lattian pintamateriaali: laatta
Seinien pintamateriaali: tapetti
Lattian pintamateriaali: laatta
Katon pintamateriaali: Peltikate
Asunnon tontti
Puuliiteri
Muut rakennukset
Rakennustyypin kuvaus: Grillikota
Muut lisätiedot
Sälekaihtimet





























