Omakotitalo rauhallisella sijainnilla – Siikakuja 4, Kello (Kiviniemi)
Tervetuloa tutustumaan tähän hurmaavaan vuonna 1978 rakennettuun omakotitaloon Kiviniemen rauhallisella alueella – meren läheisyydessä.
Talon sydän on valoisa ja kodikas olohuone, josta avautuu näkymä suojaisalle, vehreälle pihalle. Tässä pihassa kelpaa viettää kesäpäiviä: vanhat puut, hyvin hoidetut istutukset ja tilaa vaikka kasvimaalle tai trampoliinille – tai miksei porealtaalle? Aidattu tontti tarjoaa turvallisen leikkipaikan perheen pienimmille tai karvaisille kavereille.
Keittiössä on tilaa kokkailla ja seurustella, ja kodin pohjaratkaisu on toimiva isommallekin perheelle. Vuosien varrella tehtyjä parannuksia on toteutettu maltilla ja järjellä – niin kuin vanhoissa hyvissä taloissa kuuluukin.
Lisäksi:
Autotalli ja varastotilaa harrastajalle
Rauhallinen, päättyvä tie – ei läpikulkua
Aurinkopaneelit 2015
Patolevyt laitettu 2014
Katto pinnoitettu 2025
Jos etsit kotia, jossa yhdistyvät tunnelma, tilavuus ja loistava sijainti – tässä se on.
Ota yhteyttä ja tule ihastumaan paikan päälle – tämä talo saattaa olla juuri se, mitä etsit. 
Kohdetta myy
90120 Oulutoimisto@oulunarvokiinteistot.fi+358 08 311 2270
Esittely
Perustiedot
90810 Oulu
Hinta ja kustannukset
Laskettu velattomasta myyntihinnasta.
Lisätiedot
Saunan lauteet, saunapaneeli
Varusteet: puukiuas
Seinien pintamateriaali: betoni, puu
Lattian pintamateriaali: laatta
Lämmönjakotapa: ilmalämpöpumppu, vesikiertoinen patterilämmitys, vesikiertoinen lattialämmitys
Kylpyhuoneessa vesikiertoinen lattialämmitys.
Asunnon tilat ja materiaalit
Seinien pintamateriaali: maalattu
Lattian pintamateriaali: muovi
Lattian pintamateriaali: parketti
Lattian pintamateriaali: muovi
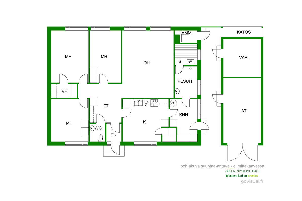
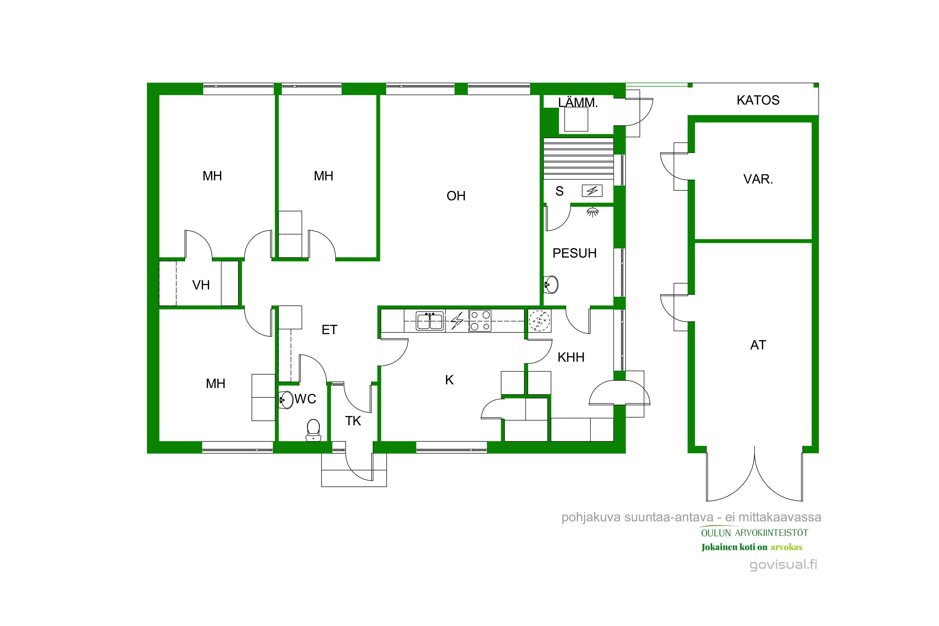
Makuuhuoneiden määrä: 3
Seinien pintamateriaali: kaakeli
Lattian pintamateriaali: laatta
Seinien pintamateriaali: muovi
Lattian pintamateriaali: muovi
Seinien pintamateriaali: maalattu
Lattian pintamateriaali: muovi
Katon pintamateriaali: Peltikate
Tallinkatto on tasa huopa katto.


























