Tilava ja valoisa koti Kynsilehdossa – arjen toimivuutta ja ripaus näyttävyyttä!
Kun avaat ulko-oven, ensimmäisenä vastassa on käytännöllinen tuulikaappi ja sen jatkeena arkieteinen, johon arjen kengät ja takit löytävät helposti paikkansa. Astut eteenpäin ja katse nousee ylös – Valon täyttämä olohuone kohoaa näyttävään huonekorkeuteen. Tila on avoinna yläkertaan saakka, mikä luo kodille upean avaruuden tunnun, mutta samalla kodikkaan.
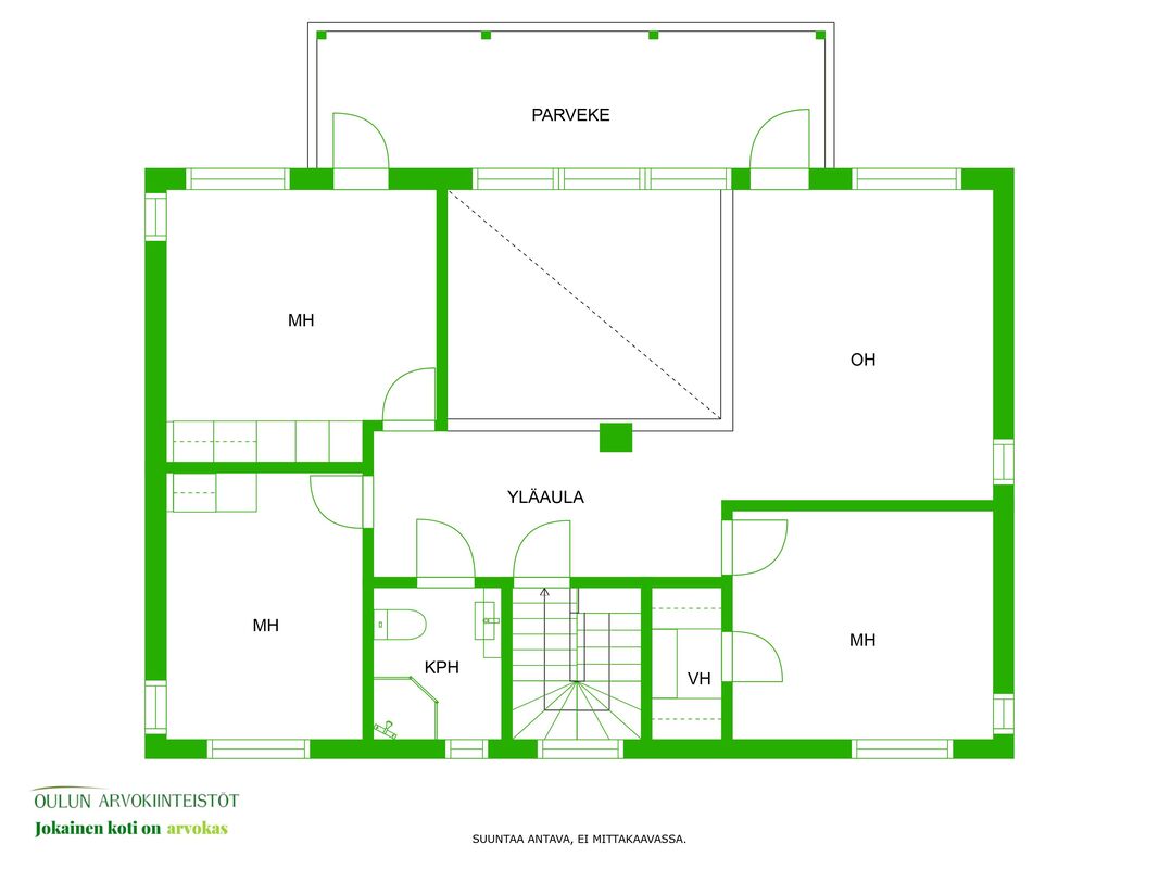
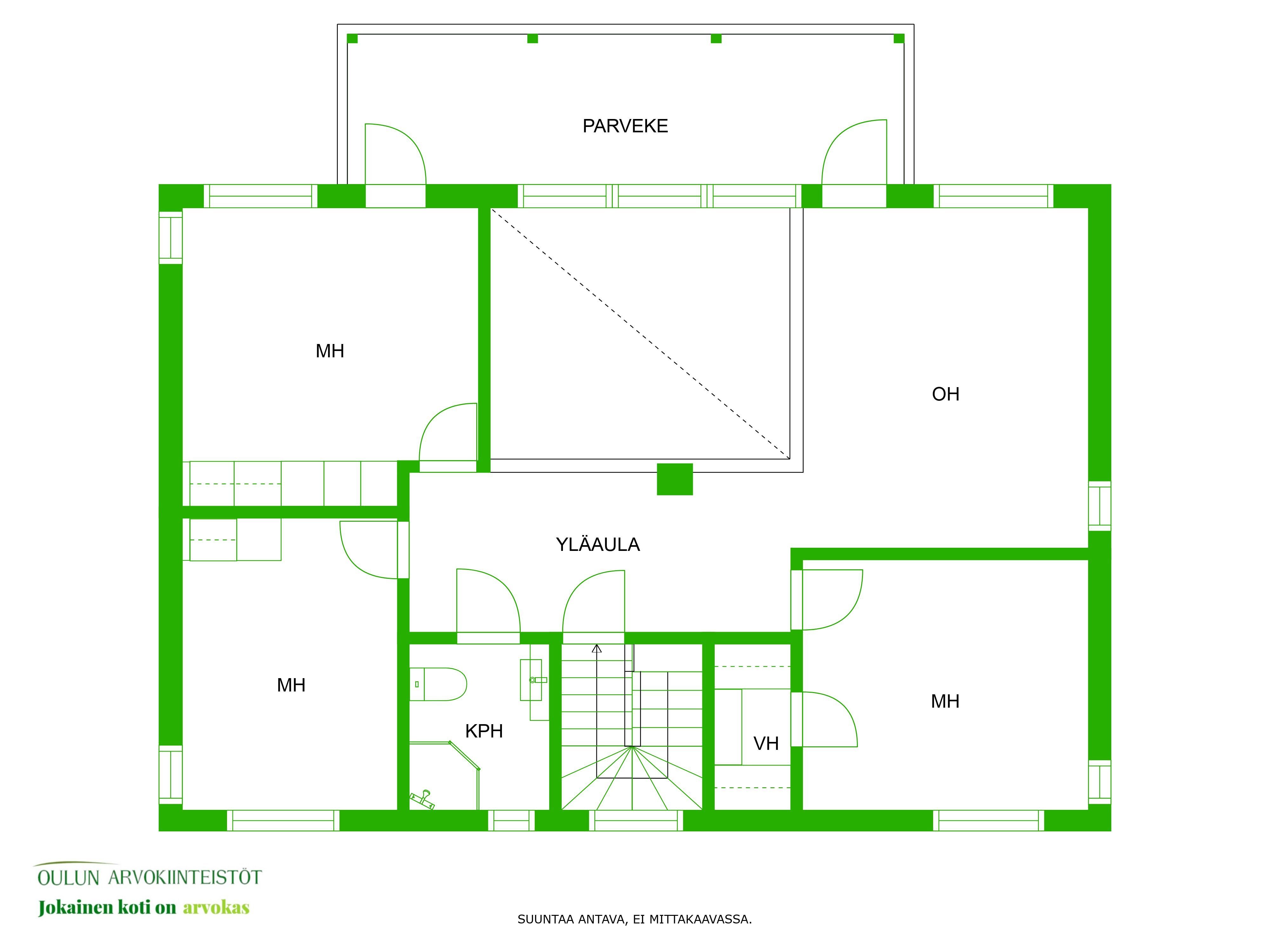
Tämä vuonna 2008 rakennettu kytketty omakotitalo tarjoaa 171 m² kahdessa kerroksessa. Pohjaratkaisu on suunniteltu sujuvaa arkea varten. Alakerrassa on yksi makuuhuone, kun taas yläkerrassa kolme lisää sekä iso aula yhdessäoloon. Kylpyhuoneet löytyvät molemmista kerroksista, mikä tekee arjesta vaivatonta – olipa perheessä sitten kiireisiä aamuja tai vieraita yökylässä.
Keittiössä kivitasot tuovat ripauksen arjen luksusta ja ruokailuryhmälle on oma paikkansa. Olohuoneesta kulku vie takapihan terassille, jossa kesäpäivät venyvät helposti iltaan. Yläkerrassa puolestaan voit astua ulos parvekkeelle joko makuuhuoneesta tai aulasta ja nauttia rauhallisista hetkistä ulkoilmassa.
Talo on varustettu vesikiertoisella lattialämmityksellä, joka on liitetty kaukolämpöön. Mukavuutta ja energiatehokkuutta samassa paketissa.
Autolle löytyy sekä autokatos että autotalli, joten säilytys ja käytännön järjestelyt on otettu huomioon.
Koti sijaitsee omalla tontilla, joka on jaettu hallinnanjakosopimuksella.
Sijainniltaan Kynsilehto on rauhallinen ja suosittu asuinalue, jossa arjen palvelut ovat lähellä ja liikenneyhteydet erinomaiset. Oulun keskustaan on matkaa vain vajaat 7 kilometriä, joten kaikki tarvittava on käden ulottuvilla.
Koti on heti muuttovalmis – siisti, hyväkuntoinen ja suunniteltu palvelemaan niin arkea kuin juhlaakin.
Täällä on tilaa hengittää, elää ja viihtyä. Tervetuloa tutustumaan.
Myynti ja esittelyt:
Tero Autio | LKV | KiLAT | 044 320 1025 | tero.autio@oulunarvokiinteistot.fi
Instagram: @teroautiolkv 
Kohdetta myy

90120 Oulutoimisto@oulunarvokiinteistot.fi08 311 2270
Esittely

Perustiedot
90650 Oulu
Hinta ja kustannukset
Laskettu velattomasta myyntihinnasta.
Sähkönkulutus v.2024 10600 Kwh,
Kaukolämmönkulutus v.2024 27.394 Mwh
Lisätiedot
Yläkerran leveällä parvekkeelle käynnit makuuhuoneesta sekä aulasta.
Varusteet: sähkökiuas
Seinien pintamateriaali: paneeli
Lattian pintamateriaali: laatta
Terassille käynti olohuoneesta. Hyvin tilaa terassiryhmälle.
-2021 Iv-kanavien puhdistus ja säätö
-2024 Keittiön viemärin puhdistus ja kuvaus
-2025 Alakerran termostaatit sekä ohjausyksikkö uusittu
Lämmönjakotapa: vesikiertoinen lattialämmitys
Asunnon tilat ja materiaalit
Varusteet: jääkaappi, pakastin, astianpesukone, induktioliesi, liesituuletin hormilla
Seinien pintamateriaali: maalattu
Lattian pintamateriaali: parketti
Seinien pintamateriaali: maalattu
Lattian pintamateriaali: laminaatti
Seinien pintamateriaali: maalattu, tapetti
Lattian pintamateriaali: laminaatti
Makuuhuoneiden määrä: 4
Varusteet: suihku, kaksi suihkua, lattialämmitys, kiinteät valaisimet, suihkuseinä, allaskaappi, peilikaappi
Seinien pintamateriaali: kaakeli
Lattian pintamateriaali: laatta
Varusteet: lattiaan asennettu WC, bidee, lattialämmitys, allaskaappi, peili
Seinien pintamateriaali: kaakeli
Lattian pintamateriaali: laatta
Seinien pintamateriaali: maalattu
Lattian pintamateriaali: laatta
Katon pintamateriaali: Huopakate
Asunnon tontti
Tontti jaettu hallinnanjakosopimuksella.
Autotalli ja autokatos talon yhteydessä.



























































