Tyylikäs ja hyvin pidetty omakotitalo Limingan keskustan läheisyydessä!
Tervetuloa tutustumaan tähän viihtyisään ja hyväkuntoiseen omakotitaloon Limingassa, aivan keskustan palveluiden tuntumassa. Tämä kahteen kerrokseen jakautuva koti tarjoaa toimivan ja monipuolisen pohjaratkaisun sekä runsaasti tilaa perheen arkeen.
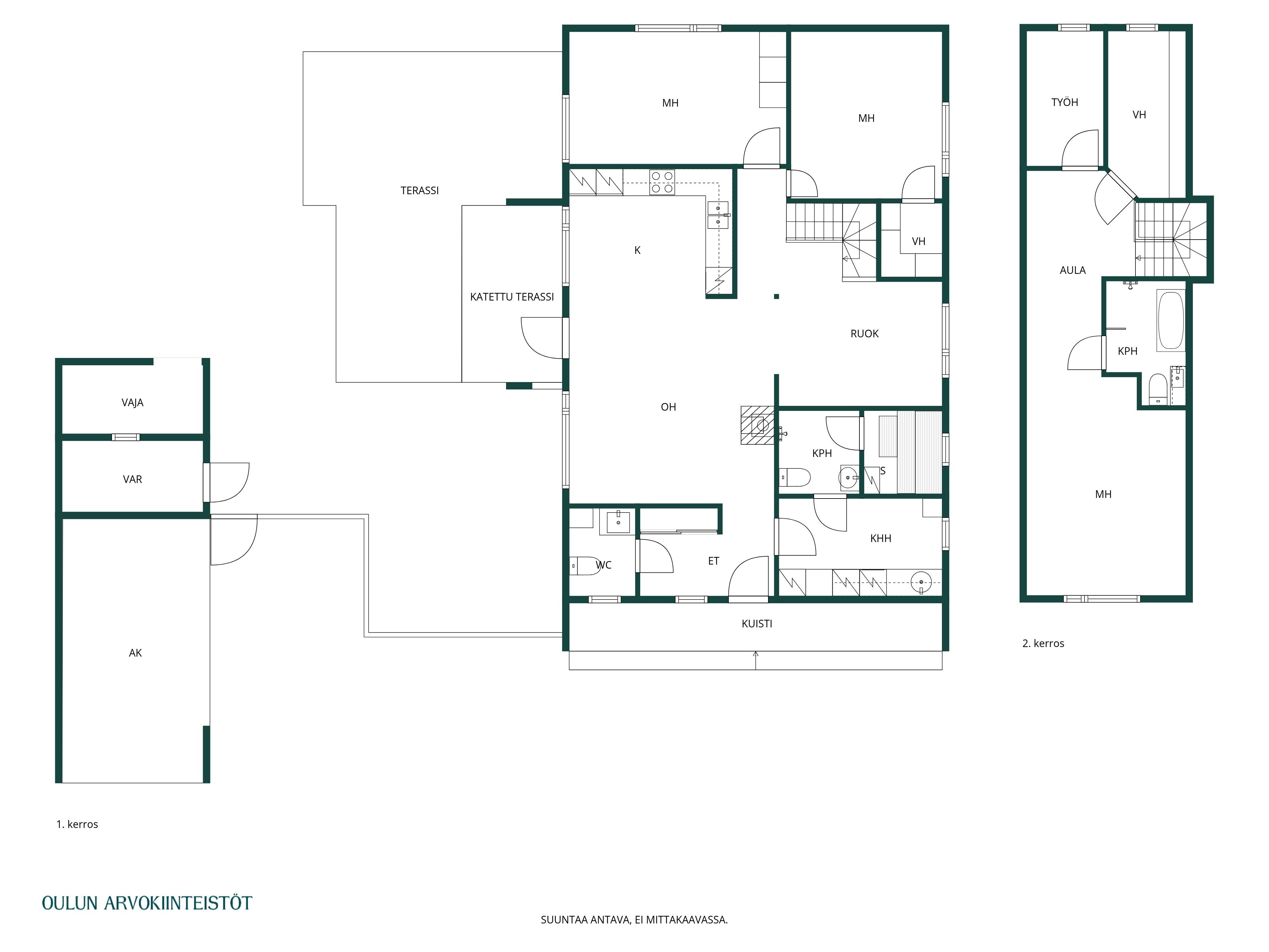
Kodissa on asuinpinta-alaa 140,70 m² ja tilat on suunniteltu käytännöllisesti. Alakerran avara oleskelutila muodostuu olohuoneen, keittiön ja ruokailutilan yhtenäisestä kokonaisuudesta. Suuret ikkunat tuovat tilaan runsaasti luonnonvaloa ja varaava takka luo tunnelmaa sekä tuo lisälämpöä kylmempiin vuodenaikoihin.
Keittiö on toimiva ja tyylikäs, tarjoten hyvin säilytys- ja työskentelytilaa. Saareke toimii luontevana lisätyötilana ja ruokailutila kokoaa perheen yhteen arjen hetkiin.
Alakerrasta löytyvät lisäksi kaksi makuuhuonetta, erillinen wc, kodinhoitohuone sekä kylpyhuone ja sauna.
Vuonna 2017 rakennettu yläkerta tuo kotiin lisää tilaa ja joustavuutta. Yläkerrassa sijaitsee suuri makuuhuone sekä kylpyhuone, jossa on suihku, wc ja kylpyamme. Lisäksi tiloissa on työhuone ja varasto, joiden tilalle on helposti toteutettavissa toinen makuuhuone tarpeen mukaan.
Kodissa on panostettu myös asumismukavuuteen ja energiatehokkuuteen. Lämmitystä tukevat varaava takka, ilmalämpöpumput sekä aurinkopaneelit.
Pihapiiri on viihtyisä ja helppohoitoinen. Oma tontti on osittain aidattu ja nurmialue tarjoaa tilaa oleskelulle ja pihaleikeille. Suuri terassi luo mukavat puitteet kesäpäivien viettoon.
Autolle on katospaikka, jonka yhteydessä sijaitsee käytännöllinen ulkovarasto.
Tämä koti yhdistää toimivan pohjaratkaisun, hyvän kunnon ja rauhallisen sijainnin palveluiden läheisyydessä – erinomainen kokonaisuus perheelle.
Myynti ja esittelyt:
Tero Autio | LKV | KiLAT | 044 320 1025 | tero.autio@oulunarvokiinteistot.fi
Instagram: @teroautiolkv 
Kohdetta myy

90120 Oulutoimisto@oulunarvokiinteistot.fi08 311 2270
Esittely
Perustiedot
Oksamantie 4
91900 Liminka
Huoneistoala 2.krs 41,20 m²
Vapautuu nopealla aikataululla.
Hinta ja kustannukset
Laskettu velattomasta myyntihinnasta.
Lisätiedot
Tunnelmallinen sauna tarjoaa miellyttävät puitteet rentoutumiseen. Vaalea puupaneeli ja ikkuna tuovat tilaan valoa ja viihtyisyyttä, mikä tekee löylyhetkistä nautinnollisia.
Varusteet: sähkökiuas, lattialämmitys, LED-valaistus, ikkuna ulos
Seinien pintamateriaali: paneeli
Lattian pintamateriaali: laatta
Suojaisa terassi tarjoaa viihtyisän paikan oleskeluun ja yhdessäoloon. Tilaa on hyvin niin ruokailuryhmälle kuin rennolle oleskelulle.
Lämmönjakotapa: sähköpatterilämmitys, sähköinen lattialämmitys, ilmalämpöpumppu
Kokonaissähkön kulutus: 12500 kWh / vuosi. Lisäksi aurinkopaneelit, Ilmalämpöpumppu kahdella sisäyksiköllä.
Asunnon tilat ja materiaalit
Varusteet: jääkaappi, pakastin, irralliset saarekkeet, induktioliesi, erillisuuni, kiinteät valaisimet, liesituuletin hormilla, integroitu astianpesukone
Seinien pintamateriaali: maalattu
Lattian pintamateriaali: vinyyli
Kiertoilmauuni (integroitu)
Seinien pintamateriaali: maalattu
Lattian pintamateriaali: vinyyli
Seinien pintamateriaali: maalattu, tapetti
Lattian pintamateriaali: vinyyli, vinyylikorkki
Makuuhuoneiden määrä: 4
2.krs: Yläkerran kylpyhuoneessa yhdistyvät moderni ilme ja rauhallinen tunnelma. Vaaleat pinnat sekä tumma tehosteseinä luovat tyylikkään kokonaisuuden. Tilassa on suihku, wc sekä kaunis kylpyamme, joka tarjoaa mahdollisuuden rentouttaviin kylpyhetkiin.
Varusteet: suihku, peili, allaskaappi, kiinteät valaisimet, lattialämmitys
Seinien pintamateriaali: kaakeli
Lattian pintamateriaali: laatta
Molemmissa kylpyhuoneissa myös wc.
Varusteet: lattiaan asennettu WC, bidee, lattialämmitys, lattiakaivo, peili, allaskaappi
Seinien pintamateriaali: kaakeli, maalattu, tapetti
Lattian pintamateriaali: laatta
Varusteet: lattiakaivo, pyykkikaapit, pesuallas, pöytätaso, lattialämmitys, pesukoneliitäntä
Seinien pintamateriaali: maalattu
Lattian pintamateriaali: laatta
Autokatoksen yhteydessä varasto sekä päädyssä vaja.
Katon pintamateriaali: Huopakate
Asunnon tontti
Tontti jaettu hallinnanjakosopimuksella.
Myytävä osuus tontista on noin
puolet, hallinnanjakosopimuksen mukaan.
Lisätietoa rakennuksesta: Varasto sekä vaja.
Muut lisätiedot
Sälekaihtimet
Verhotangot
Takka, varaava
Lämminvesivaraaja,
2*ilmalämpöpumppu










































